北京市2022年1月1日起实施《施工现场悬挑钢平台安全技术导则》
北京市住房和城乡建设委员会关于印发《施工现场悬挑式钢平台安全技术导则》的通知
特此通知。
北京市住房和城乡建设委员会
2021年12月6日
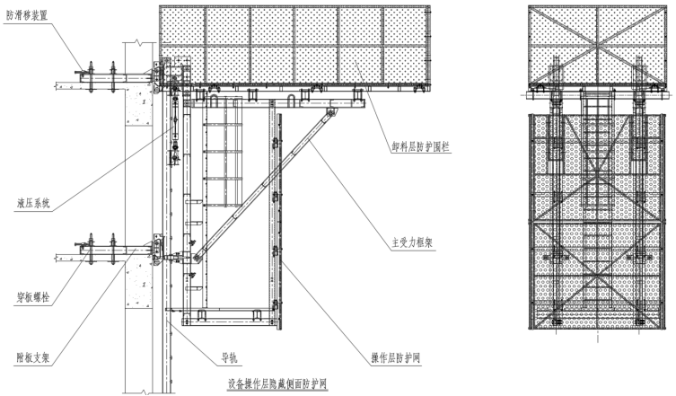
施工现场悬挑式钢平台安全技术导则 四、安全操作要求 附件1 悬挑式钢平台钢丝绳上部拉结吊点做法示意图 1.板式螺栓作为主绳上部拉结构件。其中,穿墙螺栓和挂绳螺栓采用锻造成型的M27及以上高强螺栓,性能等级10.9级,主体构件应双面满焊,不得有咬边、夹渣、裂纹等焊缝质量缺陷。 2.板式螺栓主体构件焊接过程中应保证原材的各项性能指标,避免因加工工艺导致承载力(性能指标)降低。 3.墙体(梁)预留孔须单独设置,且不得设置在平台内侧,成孔套管采用内径28mm以上 PVC管,预留在墙体内。 4.板式螺栓应垂直安装,穿墙螺栓在上,挂绳螺栓在下,主体构件贴紧墙面,钢丝绳与挂绳螺栓连接处采用配套的心形环保护。 5.墙体(梁)内侧应采用100×100×10mm铁垫片紧贴墙面,双螺母拧紧,螺栓伸出螺母长度不得小于3扣。 1.扇型螺栓作为保险绳上部拉结构件。螺栓采用HPB300、直径不小于28mm圆钢制作;扇板一侧设槽,长度宜为100mm,螺栓嵌入扇板双面满焊,不得有咬边、夹渣、裂纹等焊缝质量缺陷。 2.扇型螺栓焊接过程中应保证原材的各项性能指标,避免因加工工艺导致承载力(性能指标)降低。 3.墙体(梁)预留孔须单独设置,且不得设置在平台内侧,成孔套管采用内径28mm以上PVC管,预留在墙体内。 4.扇型螺栓安装时,立面应保证垂直,扇板贴紧墙面,钢丝绳与构件连接处采用配套的心形环保护。 5.墙体(梁)内侧应采用100×100×10mm铁垫片紧贴墙面,双螺母拧紧,螺栓伸出螺母长度不得小于3扣。 附件2 要求: 1.附板支架、平台板、防护栏、防护体系等平台主要组成部件,其原材料等级不应低于《碳素结构钢》(GB/T700)中规定的 Q235B级。 2.每个附板支架固定不少于2个穿板螺栓组件,所用螺栓规格不低于M36。 3.穿板螺栓应预紧充分并用双螺母紧固,拧紧力矩不得低于830N·m,且穿板螺栓伸出螺母长度不得小于3扣;穿板螺栓下部应采用200×200×10mm垫片。 4.穿板螺栓拧紧后锁止附板支架上防滑移装置。 5.液压爬升装置的运动机构应灵敏、可靠,复位弹簧正常工作,弹簧弹力不足应及时更换。 6.平台与结构相邻处应设置有定型防护设施,施工工况时防止坠物;爬升工况时定型防护设施应能以推拉、翻转等方式,退出至平台与结构间安全爬升距离以外。 附件3 悬挑式钢平台验收记录表 编号 工程名称 总承包单位 搭设(安装)单位 验收部位 序号 验收项目 验收内容 验收结果 1 资料 部分 钢平台专项施工方案设计符合规范要求,编制、审核、审批手续齐全 钢平台穿墙螺栓、上部拉结吊点等主要受力构配件,生产厂家资质、原材质量证明、焊缝检测报告、力学性能检测报告等资料齐全 2 实体 部分 钢平台搁置点设置在稳定的主体结构上,位于悬挑等结构时,经设计单位书面确认 钢平台上部拉结吊点位于现浇混凝土主体结构上,混凝土强度大于10Mpa 钢平台结构的悬挑主梁使用整根的槽钢(或工字钢) 钢平台承载面积应不大于20㎡,长宽比应不大于1.5∶1;悬挑梁锚固固定符合相关要求 钢平台穿墙螺栓的安装符合《导则》相关要求 钢平台钢丝绳直径不小于21.5mm,安装与连接符合《钢丝绳夹》(GB/T5976)中的规定,并设置安全弯 钢平台主绳、保险绳同时张紧、受力,与平台、主体结构、脚手架无接触;钢丝绳与平台主梁水平夹角不小于45度,水平面垂直投影夹角在0-5度 钢平台应安装声光超载报警装置 钢平台防护栏杆不低于1.5m,栏杆内侧以硬质材料进行封闭 钢平台内侧应设置限制人员数量、荷载(吨位)的标识牌,且注明各种物料放置数量和码放要求 应在主体结构可靠位置设置两根独立的安全绳(绳径不小于12.5mm) 符合现行行业标准《建筑施工高处作业安全技术规范》JGJ80中的有关规定以及相关要求 3 验收结论: 年 月 日 验收 人签 名 项目技术负责人 安装单位负责人 其他验收人员 监理单位意见: 监理工程师: 年 月 日 附件4 工具式液压爬升悬挑钢平台验收记录表 编号 工程名称 总承包单位 搭设(安装)单位 验收部位 序号 验收项目 验收内容 验收结果 1 资质 方案 生产厂家资质、原材质量证明、出厂合格证、第三方检测报告等资料齐全。 应有专项施工方案,专家论证等手续齐全。 2 附墙 装置 螺栓孔位偏差不大于±5mm。 每个附板支架固定不少于2个穿板螺栓组件,每个螺栓配双螺母,螺杆应露出螺母3扣以上,并按要求预紧。 架体与附着装置固定牢靠,导轨勾头与附着装置承力块压紧贴实。 3 架体 体系 轴连接部位弹簧销无缺失,螺栓螺母连接采用平、弹垫圈按要求拧紧,连接件、标准件满足要求,无缺失。 平台梁与架体主梁可靠连接,同一平面上平台梁的高差不大于±20mm。 4 电气、液压系统 电控系统工作正常、灵敏可靠。 电气接线应牢固、电缆接头绝缘可靠,电路应有漏电和接地保护。 液压系统正常可靠、动作平稳,超载时溢流阀保护,油缸油管破裂时液压锁保护。 5 平台板及安全防护措施 平台板满铺,离开墙面100~150mm,平台板与结构边缘处应设置架体推拉、翻折等防护设施。采用钢板网围挡,并牢固固定在架体上。 架体与建筑结构门洞口处设置可靠防护措施。 平台梯子口处设置可靠防护措施。 6 导轨及爬升机构 上防坠爬升器承力块下爪部位应与导轨压紧贴实。 上、下防坠爬升器内各组装件应转动灵活,定位正确可靠。 导轨导向间隙应在5~10mm之间。 7 平台架及防护栏杆 平台架与架体体系可靠连接,连接件、标准件满足要求,无缺失。 超载报警平台与平台架、架体体系可靠连接,连接件、标准件满足要求,无缺失。 防护栏杆高度不低于1.5m,无孔洞,与平台架、架体体系可靠连接,连接件、标准件满足要求,无缺失。 8 超载报警 装置 报警装置位置醒目,系统组件、线路按要求防护。 超载报警功能灵敏、可靠,误差不大于±10%。 9 验收结论: 年 月 日 监理单位: 年 月 日 总包单位: 年 月 日 安装操作单位: 年 月 日 附件5 悬挑式钢平台安全巡视检查记录表 编号 工程名称 总承包单位 监理单位 巡查部位 序号 巡查项目 巡查内容 巡查结果 1 上部拉结吊点 上部拉结吊点受力构件无变形、开焊、加焊、切割 板式穿墙螺栓内侧贴紧墙面 扇型穿墙螺栓立面保证垂直,内侧贴紧墙面 墙内穿墙螺栓的垫片紧贴墙面,双螺母无松动 2 钢丝绳 主绳、保险绳同时张紧、受力 主绳、保险绳与平台、主体结构、脚手架等无接触 主绳、保险绳无断丝、磨损、变形、锈蚀 钢丝绳夹间距、安全弯符合相关要求 3 钢梁及锚固 主、次梁等主要受力构件无变形、开焊、切割 悬挑钢梁锚固螺栓、螺母、螺栓钢压板(角钢压板)无松动、变形 4 安全防护 钢平台防护栏杆硬质封闭、防护网等防护设施固定牢固 为作业人员设置的两根独立安全绳固定在上一层主体结构上 钢平台上操作人员不超过2人,操作人员佩戴安全带,通过自锁器与安全绳连接 5 报警装置 及标识牌 声光超载报警装置齐全有效 限制人员数量、荷载(吨位)、验收、操作规程、码放量化等标识牌设置齐全 6 警戒区域 钢平台使用时,地面垂直投影6m范围设置警戒区,悬挂警示标识,禁止人员入内 7 物料码放 物料码放数量符合码放量化标识牌要求 物料堆放整齐,放置钢平台中心区域,码放高度低于护栏高度 物料不得挤靠钢平台防护栏杆或探出护栏放置 钢平台上的物料及时清运,不得长期存放 检查结果处理情况: 检查人员: 监理单位: 年 月 日 总包单位: 年 月 日 使用单位: 年 月 日 附件6 工具式液压爬升悬挑钢平台安全巡视检查记录表 编号 工程名称 总承包单位 监理单位 巡查部位 序号 巡查项目 巡查内容 巡查结果 1 附着 装置 爬升前,附着装置处混凝土强度不低于15Mpa。 附板支架及穿板螺栓组件无缺失、形变。 每个附板支架固定不少于两个穿板螺栓组件。 每个穿板螺栓配备双螺母,螺杆露出螺母3扣以上,并按要求拧紧。 锁止附板支架防滑移装置。 2 液压电控系统 液压电控系统组件无缺失、形变。 各接头按要求密封防水。 电气控制箱及泵站固定牢靠,并按要求防护。 3 架体 体系 架体体系与附着装置锁紧并固定牢靠。 架体各部位连接正常、牢靠。 防坠爬升装置灵敏、可靠。 导轨、防坠爬升器应涂刷润滑剂,无混凝土等黏结物。 4 架体 防护 防护系统组件无缺失、形变。 平台防护翻板按要求设置。 人员上下通道按要求防护。 平台防护网按要求封严。 5 报警装置 及标识牌 声光超载报警装置齐全有效。 限制人员数量、荷载(吨位)、验收、操作规程、码放量化等标识牌设置齐全。 6 警戒 区域 钢平台使用时,地面垂直投影6m范围设置警戒区,悬挂警示标识,禁止人员入内。 7 物料 码放 物料码放数量符合码放量化标识牌要求。 物料堆放整齐,放置钢平台中心区域,码放高度低于护栏高度。 物料不得挤靠钢平台防护栏杆或探出护栏放置。 钢平台上的物料及时清运,不得长期存放。 8 巡查结论: 年 月 日 监理单位: 年 月 日 总包单位: 年 月 日 使用单位: 年 月 日 附件7 钢平台标识标牌 1.限载标识牌尺寸:400mm×300mm; 2.限制荷载1.5吨。 (二)钢平台验收标识牌 钢平台验收标识牌 钢平台编号 搭设部位 搭设时间 允许载荷 验收时间 验收结论 施工单位验收人员 监理单位验收人员 (三)钢平台安全操作规程牌 (四)钢平台荷载量化标识牌(以钢平台荷载1.5t为例) 序号 材料名称 尺寸规格 重量 允许码放数量 1 普通钢管 Φ48.3mm×3.6mm(1米) 3.84kg/根 346根 2 Φ48.3mm×3.6mm(3米) 11.52kg/根 115根 3 Φ48.3mm×3.6mm(4米) 15.36kg/根 86根 4 Φ48.3mm×3.6mm(6米) 23.04kg/根 57根 5 钢管扣件 直角扣件 1.35kg/个 985个 6 旋转扣件 1.49kg/个 892个 7 对接扣件 1.88kg/个 707个 8 碗扣式脚手架 立杆 (材质Q235) Φ48.3mm×3.5mm×1200mm 7.05kg/根 188根 9 Φ48.3mm×3.5mm×1800mm 10.19kg/根 130根 10 Φ48.3mm×3.5mm×2400mm 13.34kg/根 99根 11 Φ48.3mm×3.5mm×3000mm 16.48kg/根 80根 12 碗扣式脚手架 水平杆 (材质Q235) Φ48.3mm×3.5mm×600mm 2.47kg/根 538根 13 Φ48.3mm×3.5mm×900mm 3.69kg/根 360根 14 Φ48.3mm×3.5mm×1200mm 4.84kg/根 274根 15 Φ48.3mm×3.5mm×1500mm 5.93kg/根 224根 16 Φ48.3mm×3.5mm×1800mm 7.14kg/根 186根 17 碗扣式脚手架 可调托撑 T38mm×5.0mm 可调范围≤300mm 7.01kg/个 189个 18 T38mm×5.0mm 可调范围≤450mm 8.31kg/个 160个 19 T38mm×5.0mm 可调范围≤600mm 9.69kg/个 137个 20 盘扣式钢管支架立杆 (Q345A) Φ48mm×3.2mm×1000mm 5.30kg/根 250根 序号 材料名称 尺寸规格 重量 允许码放数量 21 Φ48mm×3.2mm×1500mm 7.64kg/根 174根 22 Φ48mm×3.2mm×2500mm 12.30kg/根 108根 23 盘扣式钢管支架水平杆 (Q235B) Φ48mm×2.5mm×540mm 2.30kg/根 578根 24 Φ48mm×2.5mm×840mm 3.20kg/根 415根 25 Φ48mm×2.5mm×1140mm 4.10kg/根 324根 26 Φ48mm×2.5mm×1440mm 5.00kg/根 266根 27 Φ48mm×2.5mm×1740mm 5.90kg/根 225根 28 盘扣式钢管支架竖向斜杆 (Q195) Φ33mm×2.3mm×1699mm 4.09kg/根 325根 29 Φ33mm×2.3mm×2042mm 4.70kg/根 282根 30 Φ33mm×2.3mm×2402mm 5.40kg/根 246根 31 Φ33mm×2.3mm×2756mm 5.95kg/根 223根 32 盘扣式钢管支架水向斜杆 (Q235B) Φ48mm×3.2mm×1273mm 4.30kg/根 309根 33 Φ48mm×3.2mm×1500mm 5.00kg/根 266根 34 Φ48mm×3.2mm×1749mm 5.70kg/根 233根 35 Φ48mm×3.2mm×1921mm 6.20kg/根 214根 36 Φ48mm×3.2mm×2121mm 6.80kg/根 195根 37 盘扣式钢管支架可调托座 (Q235B) Φ48mm×6.5mm×500mm 4.38kg/个 303个 38 Φ48mm×6.5mm×500mm 4.74kg/个 280个 39 轮扣式钢管支架 立杆 Φ48.3mm×3.6mm×710mm 3.76kg/根 353根 序号 材料名称 尺寸规格 重量 允许码放数量 40 Φ48.3mm×3.6mm×1310mm 6.57kg/根 202根 41 Φ48.3mm×3.6mm×1910mm 9.38kg/根 141根 42 Φ48.3mm×3.6mm×2510mm 12.18kg/根 109根 43 轮扣式钢管支架 水平杆 Φ48.3mm×3.2mm×600mm 2.36kg/根 563根 44 Φ48.3mm×3.2mm×900mm 3.43kg/根 387根 45 Φ48.3mm×3.2mm×1200mm 4.50kg/根 295根 46 轮扣式钢管支架 可调托撑 T38mm×5.0mm×500mm 6.93kg/个 191个 47 T38mm×5.0mm×600mm 8.31kg/个 160个 48 轮扣式钢管支架 可调底座 T38mm×6.0mm×500mm 7.12kg/个 186根 49 T38mm×6.0mm×600mm 8.53kg/个 155根 50 方木 50×100mm×4000mm 13.00kg/根 102根 51 方木 100×100mm×4000mm 25.80kg/根 51根 52 方钢 50×100mm×3000mm 20.40kg/根 65根 53 方钢 50×100mm×4000mm 27.20kg/根 48根 54 竹胶板 1220mm×2440mm 34.8kg/块 38块 55 木脚手板 4000mm×200mm×50mm 28kg/块 47块 56 操作工人 85kg/人 限2人 注:1.此表以钢平台额定荷载1.5t,2人作业为例; 2.其他额定荷载钢平台应根据计算得出; 3.钢平台散料应使用容器吊装,吊装容器自重应计算在内。
工具式液压爬升悬挑钢平台三维示意图2
